

Mit einer Doppelhaushälfte hat die Familie Tuncer eine individuelle Lösung für ihr Eigenheim bekommen. Das heißt: ein auf die Wünsche der Baufamilie zugeschnittener Grundriss, eine sehr gut gedämmte Gebäudetrennwand zum Nachbarn und ein entkoppeltes Schall- und Brandschutzkonzept.
Wenn Süreyya Tuncer von ihrer offenen Küche aus quer durch den großen Wohnraum in den Garten schaut, sieht sie stilvolle Loungemöbel unterm Sonnenschirm und die Hollywoodschaukel vor dem einladenden Grün der Hecke. Viele gesellige Stunden hat sie hier bereits mit ihrer Familie und Freunden verbracht. „Dass die Nachbarn direkt nebenan wohnen, vergesse ich oft“, sagt sie. „Wir haben uns hier trotz sehr dichter Bauweise etwas Privates ganz nach unseren Wünschen geschaffen“, bestätigt ihr Mann Ramazan.
Was kostet Hausbau wirklich?
Familie Martens über ihr SchwörerHaus
Der Besuch bei Familie Martens gibt eine gute Übersicht über die Kosten und Preise beim Hausbau. Was kostet eigentlich ein Hausbau und worauf muss man achten?
So wird ein schlüsselfertig Haus gebaut:
Vor Ort mit SchwörerHaus
Heute sind wir unterwegs mit dem Truppführer und zeigen, wie die Wände eines Fertighauses aufgebaut werden.
Kontrollierte Wohnraumlüftung – hervorragender Schutz für Allergiker
Mit einer kontrollierten Wohnraumlüftung von SchwörerHaus zur pollenfreien Zone – mit einer Lüftungsanlage und den richtigen Pollenfiltern.
Wir sind ganz in Ihrer Nähe. Mit Ausstattungszentren, Produktionsstätten, vor allem aber mit Musterhäusern und unseren Bauberaterinnen und Bauberatern, die Sie umfassend betreuen.
Unsere Schwörer-Bauberatung steht Ihnen auch für eine persönliche Online-Video-Beratung gerne zur Verfügung.
Inzwischen wird es immer schwieriger einen Bauplatz für ein freistehendes Haus zu finden. Die raren Parzellen im Bestand sind begrenzt, Regeln für neue Wohngebiete streng. Dort wird vor allem Baugrund für Mehrfamilienhäuser oder für Doppelhäuser ausgewiesen. Letztere sind eine echte Alternative zum freistehenden Einfamilienhaus, können Süreyya und Ramazan Tuncer bestätigen. Hochwertige Architektur, individuelles Wohnen, Privatsphäre, viel Freiraum und ein eigener Garten – all das ist in einer Doppelhaushälfte möglich. Gut, dass sich moderne Fertighaus-Konzepte wie die von SchwörerHaus an die Gegebenheiten anpassen lassen: einerseits mit nachhaltigen technischen Lösungen für die Nachverdichtung, andererseits mit Hausentwürfen, die auf kompaktem Raum viel individuelle Freiheit bieten.
Da Süreyya und Ramazan Tuncer beide in Vollzeit arbeiten, wollten sie sich möglichst wenig selbst um den Hausbau kümmern müssen. Da kam ihnen das SchwörerHaus-Konzept ,Alles unter einer Regie zum Festpreis‘ sehr entgegen. „Man kann dem Hersteller einfach alles überlassen“, beschreibt der Bauherr den großen Vorteil beim Fertighausbau mit einem kompetenten Baupartner. Die ökologischen Qualitäten seines Schwörer-Hauses sieht er als weiteren Pluspunkt: natürliche Holzbauweise ohne den Einsatz von Chemie, auf Schadstoffe geprüfte Baustoffe auch für den Innenausbau und vor allem die kontrollierte Be- und Entlüftung. Sie sorgt standardmäßig in jedem SchwörerHaus für einen regelmäßigen Luftwechsel und ein gesünderes Raumklima.
Familie Tuncer hat eine individuelle Lösung für ihr Eigenheim bekommen: zugeschnittener Grundriss, eine sehr gut gedämmte Gebäudetrennwand zum Nachbarn und ein entkoppeltes Schall- und Brandschutzkonzept. Ein Vorteil, denn anders als früher, als sich zwei Familien zusammentaten und gemeinsam bauten, wird heute immer öfter im Zuge der Nachverdichtung an bestehende Haushälften angebaut. Mit SchwörerHaus geht das: Ob Altbestand oder Neubau, konventionell oder Holz-Fertighaus – ein Anbau an jedes andere Haus ist möglich.
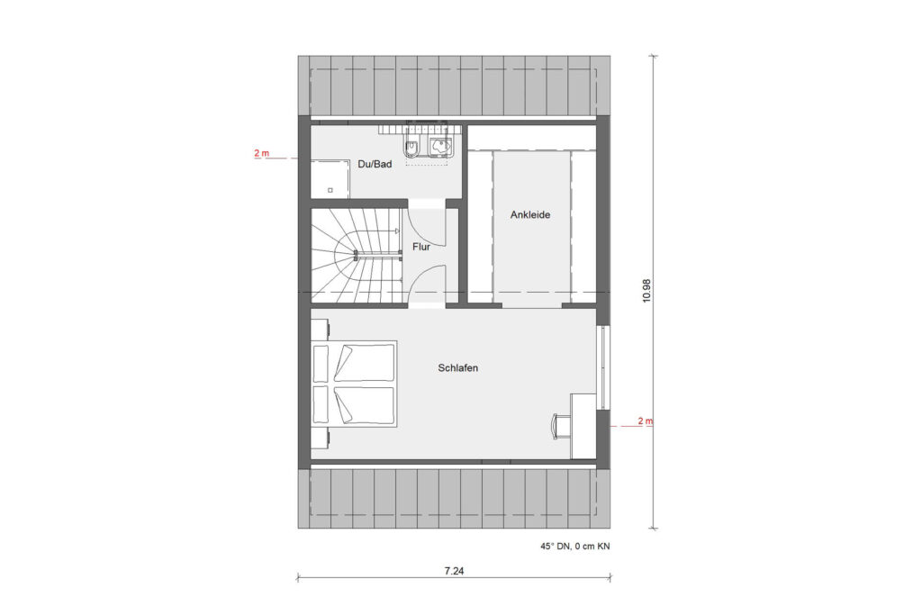
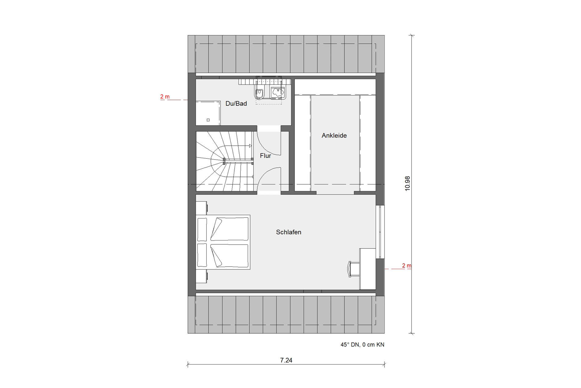
Mit seiner modernen Fassadengestaltung, spannenden Fensterformaten mit Außenjalousien und anthrazitfarbenen Ton-Designziegeln als Dacheindeckung ist das KfW Effizienzhaus 55 der Familie Tuncer ein besonders attraktiver Vertreter dieses Bautypus. Auch im Inneren durchzieht sich ein klares Farbkonzept der Architektur: von den weiß glänzenden Küchenfronten über die anthrazitfarbenen Fliesen im Bad bis hin zur Ankleide aus der Schwörer Designschreinerei im Elternbereich unterm Dach. „Mir war es wichtig, dass unser Haus eine persönliche Ausstrahlung hat, dass die Farben fein abgestimmt sind“, erzählt Frau Tuncer.
Sie träumen von Ihrem eigenen Zuhause oder sind bereits in der Planungsphase?
Profitieren Sie jetzt mit unserer Herbstaktion* von unseren exklusiven Angeboten und sichern Sie sich bei einem Vertragsabschluss bis zum 30.11.2025 eines der drei Top-Angebote für Ihr Hausprojekt:
Sie sind neugierig geworden? Dann sprechen Sie unsere Schwörer-Bauberatung gerne darauf an!
* Die Aktion ist befristet bis zum 30.11.2025 nach Preisliste 3/2025. Gültig für Deutschland außer Inseln und nicht mit anderen Aktionen kombinierbar. Pro Bauvorhaben kann ein Gutschein ausgewählt werden.
Sie möchten mehr über unsere Schwörer-Häuser erfahren und sich eines der Top-Herbstangebote sichern?
Gerne senden wir Ihnen unser kostenfreies Infopaket digital zu.
Die Print-Version sowie weitere Details zum Infopaket finden Sie hier.
Ich möchte das kostenlose Schwörer-Infopaket bestellen:*
Einfamilienhäuser
Eineinhalb- oder zweigeschossig, mit Sattel-, Walm- oder Flachdach, als Stadtvilla, Landhaus oder Kubus – wir realisieren Ihr individuelles Einfamilienhaus für Sie.
Bungalows
Ein luftig-leichtes Wohngefühl, direkter Zugang zum Garten von allen Räumen – das Wohnen auf einer Ebene hat seinen Reiz. Bungalows sind eingeschossige Häuser mit vielen Möglichkeiten.
FlyingSpaces: Tiny Houses
FlyingSpaces bzw. Tiny Houses sind hochwertige Module, die als vollwertiges Minihaus, Einzelraum-Anbau oder auch im Verbund funktionieren.
Doppelhäuser
Doppelhäuser sind eine gute Alternative, wenn es um verdichtetes Bauen geht. Gerade für innerstädtische Grundstücke ist der Bau von Doppelhäusern und sogenannten Kettenhäusern interessant.
Häuser mit Einliegerwohnung
Sie möchten eine zweite, abgeschlossene Wohneinheit innerhalb Ihres Einfamilienhauses, um diese vermieten zu können oder die Großeltern bzw. erwachsenen Kinder im Haus zu haben?
Mehrfamilienhäuser
Sie sind auf der Suche nach einem sicheren, langfristigen Investment mit geringem Risiko? Aus wirtschaftlicher und strategischer Sicht ist die Investition in ein Mehrfamilienhaus lohnend.
SchwörerHaus-Newsletter
© SchwörerHaus KG | Alle Rechte vorbehalten
Lorem Ipsum is simply dummy text of the printing and typesetting industry. Lorem Ipsum has been the industry’s standard dummy text ever since the 1500s, when an unknown printer took a galley of type and scrambled it to make a type specimen book. It has survived not only five centuries, but also the leap into electronic typesetting, remaining essentially unchanged.